L’immeuble se dresse avec la sobriété rassurante de ses briques. Sa façade, solide, imposante sans prétention.
Rien ne laisse deviner qu’au-delà de cette apparence se cache un univers façonné par un luxe qui ne cherche pas à s’exhiber, mais à durer. À l’intérieur, le bois chaleureux, le verre limpide et le métal patiné se marient avec la brique. Les matériaux naturels révèlent une élégance intemporelle.
La mémoire des briques, de la pierre, garde la trace des époques traversées, offrant à ce lieu une profondeur unique. Le passé se mêle au présent… Un jardin intérieur verdoyant, se dévoile comme un secret protégé. Il apaise, rafraîchit, et confère aux utilisateurs le luxe rare du calme et de la fraicheur.
Enfin, une cafétéria singulière, pensée comme l’univers d’un train hors du temps, invite au voyage immobile. Les banquettes rappellent les compartiments d’autrefois, les alcôves s’arrondissent en cocons accueillants, et l’on y savoure le plaisir de s’arrêter, de se retrouver, de rêver.
Entre passé et présent, entre mémoire et modernité, ce lieu devient un havre où l’on vit autant qu’on s’y laisse transporter. Ici, le luxe se cache dans l’authenticité des matières, dans la verdure préservée, dans le calme et la luminosité .

Croquis de la cafétéria

Moodboard de la cafétéria
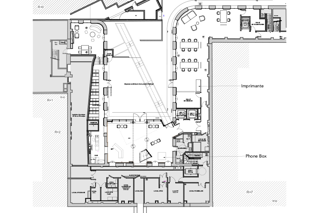
Plan du rez-de-chaussée
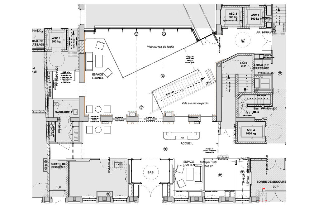
Plan du rez-de-jardin et socle serviciel

Moodboard du hall